Provisionsfreier Neubau: Freistehendes Einfamilienhaus mit 801 qm Grundstück in Grefrath-Oedt

Provisionsfreier Neubau: Freistehendes Einfamilienhaus mit 801 qm Grundstück in Grefrath-Oedt

Provisionsfreier Neubau: Freistehendes Einfamilienhaus mit 801 qm Grundstück in Grefrath-Oedt

Zu Verkaufen

751.100€

  • Außenansicht
  • Zeichnungen Ansicht
  • Schnittzeichnung
  • Zeichnungen Seitenansicht

Immobilien-ID :

 2569

Teilen

Added to Favorite

Favorite

Drucken

Schlafzimmer

3

Bäder

1

Fläche

143

Baujahr

2025

Beschreibung

Objektbeschreibung

Das hier angebotene EFH hat eine Wohnfläche von ca.143 m². Diese verteilt sich auf das Erdgeschoss (ca.78,80 m²), das Dachgeschoss (ca.64,05 m²). Der Spitzboden des Objektes ist nicht ausgebaut. Die Grundstücksgröße beläuft sich auf 801 m², das Objekt ist nicht unterkellert.

Die Aufteilung des Objektes ist wie folgt geplant:

Erdgeschoss: Diele mit Garderobe, Gäste-WC, Arbeitszimmer, Hauswirtschaftsraum, Abstellraum und Wohn-/Esszimmer mit offener Küche und Zugang zur Gartenterrasse und dem Garten.
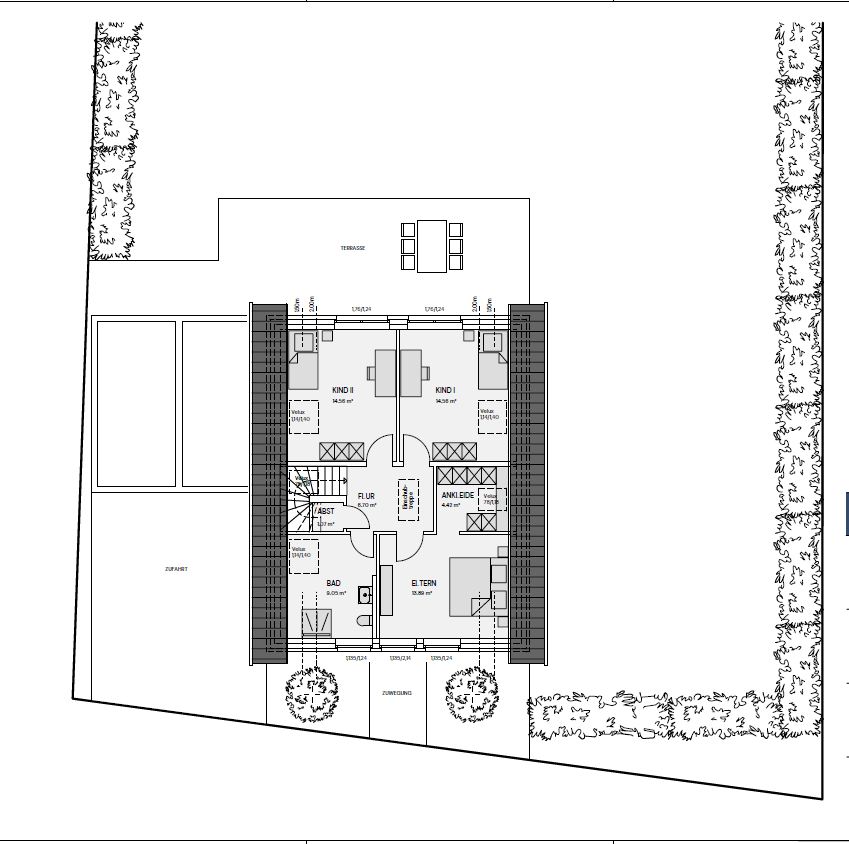
Dachgeschoss: Diele, Elternschlafzimmer mit anliegendem Ankleidezimmer, 2 Kinderzimmer und ein Badezimmer mit Tageslicht und ebenerdiger Dusche.
Spitzboden: nicht ausgebaut.

Für die Käufer wird das Objekt provisionsfrei angeboten.

Auf Wunsch der Käufer kann das hier angebotene Neubauprojekt noch individuell angepasst und verändert werden. Gerne können wir das in einem persönlichen Gespräch erörtern.

Lage

Das Objekt liegt in einem ruhigen Wohngebiet von Grefrath-Oedt und ist umgeben von diversen Feldern und Grünflächen sowie der Niers. Die Nachbarschaftsbebauung kann insgesamt als großzügig bezeichnet werden und besteht überwiegend aus freistehenden Einfamilienhäusern und Doppelhaushälften. Die Straße ist zudem nur für Anlieger zu befahren, weshalb es durch die Kombination mit den umliegenden Erholungsflächen das perfekte Umfeld für die ganze Familie bietet.

Ausstattung

Der Hauptenergieträger im Objekt ist eine Luftwärmepumpe in Kombination mit einer Warmwasser-Fußbodenheizung, welche ebenfalls die Warmwasserversorgung übernimmt. Die weißen Kunststofffenster verfügen über 2-fach Wärmeschutzverglasung und sind mit elektrischen Rollladen ausgestattet. In der EG-Diele, dem Gäste-WC, dem Hauswirtschaft– und Hausanschlussraum, dem Abstellraum, der Küche und dem Badezimmer dienen Fliesen als Bodenbelag. Die Fußböden in den Schlafräumen und Wohn-/Esszimmern sind in Eigenleistung zu erbringen, ebenso die Malerarbeiten sowie Pflasterarbeiten. Zu dem Objekt gehören zwei Fertiggaragen mit Maßen von 3 x 6 m jeweils mit Schwingtor und Türe. Weitere Details und eine ausführliche Baubeschreibung erhalten Sie gerne auf persönliche Anfrage.

Sonstiges

Die Gemeinde Grefrath, im nordöstlichen Teil des Naturparks Schwalm-Nette gelegen, verfügt nicht nur über eine Reihe außergewöhnlicher Freizeitangebote wie das Eissportzentrum oder den Nahe gelegenen Flugplatz, sie liegt auch inmitten unberührter Natur. Das Flüsschen Niers durchfließt Grefrath von Süden nach Norden. Die Ortsteile Grefrath und Vinkrath liegen auf der westlichen, Oedt und Mülhausen auf der östlichen Seite. Das Freilichtmuseum mit der Dorenburg bietet weitere kulturelle Möglichkeiten. Der Natupark Schwalm-Nette ist mit diversen Fahrrad- und Wanderwegen ausgestattet, um die Natur noch besser erleben zu können. Per Auto und per Bus sind die Nachbarstädte Kempen und Viersen gut zu erreichen.

Weitere Details

  • Grundstücksfläche: 801 m²
  • Zimmer insgesamt: 7
  • Anzahl Stellplätze: 4
  • Heizungsart: Fußbodenheizung
  • Anzahl Etagen: 2,0
  • Zusatzinformation zur Lage: Oedt
  • Anzahl Garagenstellplätze: 2
  • Art der Ausstattung: gehoben
  • Befeuerung: Luft-Wärmepumpe
  • Stellplatzart: Garage
  • Baujahr: 2025
  • Zustand: Objekt ist projektiert
  • Immobilie ist verfügbar ab: nach Vereinbarung

Ausstattung

Grundrisse

Grundriss EG

Grundriss DG

Umgebungskarte

Ähnliche Immobilien